Historic One-of-a-kind Apartments - Minneapolis, Minnesota
Built in the 1930's, Fair Oaks Apartments' ivy-covered red brick buildings have a charm and quality that is unique in the city of Minneapolis. All apartments have hardwood floors and french pane windows. Lovely views, historic charm and a central location make Fair Oaks the most livable choice in Minneapolis. Fair Oaks Apartments is located at 24th Street and 3rd Avenue South, ten blocks south of Downtown Minneapolis.
Our on-site management is always ready to help, and the office is open six days a week to address any questions or concerns. We have a professional, full-time maintenance staff, painters, groundskeepers, and someone on call 24 hours every day of the year.
Beautiful Historic Apartments & Elegant Interiors

Bedrooms
Our bedrooms are spacious and feature hardwood floors throughout.

Dining Areas
Our dining areas are centrally located and also feature beautiful hardwood floors.
Unique Ivy-covered Exteriors

Semi-Private Buildings
Our apartments are semi-private, with only 6 apartments for each exterior entrance.


Lots of Windows & Ventilation
Apartments feature six to eleven windows per apartment with beautiful views and cross ventilation.

Centrally located in the Twin Cities
Fair Oaks Apartments is located just ten blocks south of Downtown Minneapolis and right across the street from the
Minneapolis Institute of Arts, The Children's Theatre and the Minneapolis College of Art and Design (MCAD).
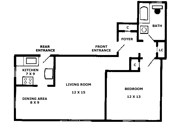
Floorplans & Virtual Tours
- 1 Bedroom » Unit A: Floorplan | Virtual Tour
- 1 Bedroom » Unit B: Floorplan
- 1 Bedroom » Unit C: Floorplan | Virtual Tour
- 1 Bedroom » Unit D: Floorplan | Tour 1 | Tour 2
- 1 Bedroom » Unit E: Floorplan
- 2 Bedroom » Unit A: Floorplan

Other Apartment Features & Amenities
- Classic architecture in historic Whittier neighborhood. Design praised by Architecture Minnesota.
- Six to eleven windows per apartment with beautiful views and cross ventilation.
- Minutes from Downtown Minneapolis and Uptown – located on MTC bus line.
- Underground parking available.
- Semi-private, with only 6 apartments for each exterior entrance.
- Most apartments have front and back doors. No long hallways found in most apartment buildings.
- Beautiful courtyard for private use of residents. Residents encouraged to have flower gardens.
- Across the street from the Minneapolis Institute of Arts, Minneapolis Children's Theatre &
Minneapolis College of Art & Design (MCAD). - Storage lockers available.
- Heat and water included in rent.
- Sorry, no pets permitted.